Le casette da giardino, le baite, le coperture, i padiglioni, le saune, i chioschi, le casette per barbecue e i garage in legno fabbricati nello stabilimento Tene sono completi di porte, finestre, pavimento, elementi di fissaggio e istruzioni di installazione, rendendo l’installazione semplice e veloce.
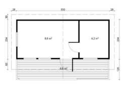
Il set casetta sauna con parete da 70 mm di spessore di TENE comprende quanto segue in base al disegno del prodotto:
legname di abete al 100% di qualità nordica;
porte e finestre in legno lamellare ultra asciutto (8-12%);
soglia in acciaio inossidabile;
finestre alla tedesca ad anta e ribalta con vetrata (ISO) e guarnizione, comprensive di ferramenta;
porta alla tedesca con vetrata (ISO), comprensiva di ferramenta;
porta del bagno turco in legno lamellare, con vetro temperato;
set panca per sauna in ontano con schienale e panca a gradini;
travi di fondazione impregnate in autoclave;
pavimento in profilato da 28 mm di spessore;
canale dell’acqua nel pavimento del bagno turco;
soffitto profilato;
barre filettate;
elementi di fissaggio (chiodi e viti);
disegni e schemi di installazione.
