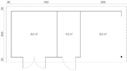
Le casette da giardino da 40 mm, le baite, le coperture, i padiglioni, le saune, i chioschi, le casette per barbecue e i garage in legno fabbricati nello stabilimento Tene sono completi di porte, finestre (a seconda del modello, il prodotto potrebbe non avere finestre o una o più finestre), pavimento, elementi di fissaggio e istruzioni di installazione, rendendo l’installazione semplice e veloce.
A seconda del modello, il set casetta da giardino di Tene con pareti spesse 40 mm include:
- legname di abete al 100% di qualità nordica;
- porte in legno lamellare ultra asciutto (8-12%);
- porte con vetrata, comprensive di ferramenta;
- pavimento e soffitto in profilato da 18 mm di spessore;
- travi di fondazione impregnate in autoclave;
- barre anti-tempesta;
- elementi di fissaggio (chiodi e viti);
- istruzioni di installazione.
